Главная - Проекты домов - Проект дома Оптима2

Проект дома “Оптима2“


Искать товар по:
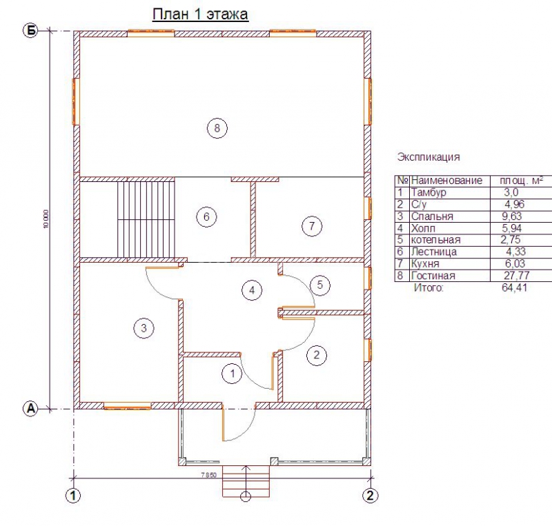
Планы этажей


Варианты меблировки



Проект дома “Оптима2“

Заказать
проект

Посчитать
мой проект

Выезд
специалиста
бесплатно!

Площадь:

Общая площадь помещений: - м2


Габариты:

Ширина дома: - м

Длина дома: - м


Планировка:

Количество санузлов: -

Количество спален: -

Количество комнат: -

Этажность: -




Задать вопрос по товару:






Введите символы указанные на картинке